Lost Dutchman 
Age-Restricted (55+) Community
10936 E. Apache Trail, Lot#62
Apache Junction, AZ 85120
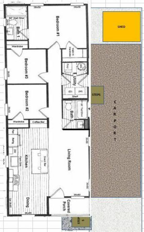
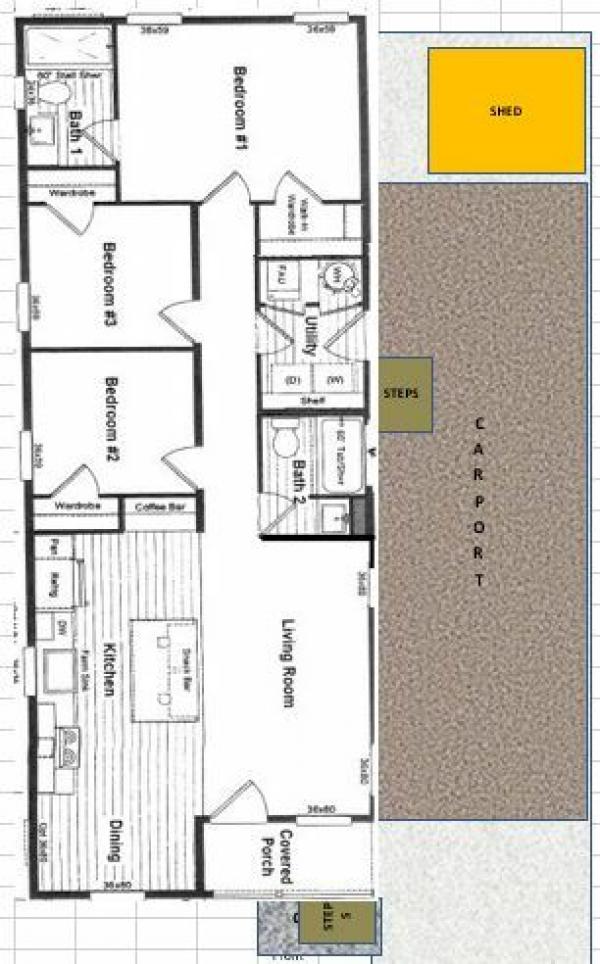
- 20 x 56
- 3 bedrooms
- 2 bathrooms
- Seller ID #155743
Welcome home to our Active 55+ Community.
Come see this hard to find 3 bedroom 2 bath model in our active 55+ community.
This 3/2 Clayton home is a new 2025 model with open floor plan and covered front porch. Spacious kitchen with Island opens to the family room. We have swapped the utility room towards the rear side of the home to allow for additional room in the carport. This brand new home comes with all the SS Kitchen appliances, gas stove and a 7 year extended warranty. Call us today for a community tour or apply now. Last one of this model left!3rd party financing may be available on select homes. Inquire with our sales office.