Michelle Fairchild
Premiere Choice Manufactured Housing
Phone: (714) 760-4275
Fax: (888) 888-8888






















View a virtual tour of this home: https://my.matterport.com/show/?m=axCRWCn6mrh
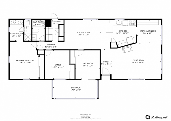
Community Information Mariners Pointe is located at 19350 Ward Street, Huntington Beach 92646. There are 98 Spaces in this Park, Senior 55 + with 2nd Person 45+, Some 6' fencing allowed, Be Creative, Owner/Manager Onsite, Heated Pool/Spa, Gathering Ready Clubhouse (Full Kitchen, Complimentary Tables and Chairs for Your Resident Responsible Events), Internet WiFI,Senior Community Vibe, Park Owned Land Not Leased Land, Family Owned Park, >3 miles to Beach (See Photo of Location Proximity to Ocean), Clubhouse Max Capacity (60-100), Verizon Internet/Cable,2- 18" or less Small DOGS Ok (No Walking inside Park) Home Information Newer Water Heater, Stove, Washer/Drywer & Refrigerator Composite Decking Material in Front & Rear Patio Area Faces West Open Floorplan $169,000.00 Space Rent $2 Dahll 1440 sq ft 3 Bedrooms/2 Bath New Washer & Dryer All Drywall Side Room off 3rd Bed Newer Composite Side Porch Siding Newer Furnace & Water Heater New GAS Stove & Refrigerator Serial S5665S Premiere Choice Manufactured Housing is an HCD Dealer, owned by Michelle Fairchild, formerly Sales Manager and Multi Million Dollar Producer at Blue Carpet Mfd Homes for over 22 years. Michelle & Josh (her nephew), and Kevin (husband of 25 yrs), and her best Friend Ruth, are a Team that holds multiple state licenses. We know Orange County parks!! We know the ownership, leases, rent increases, history, etc. We are very knowledgeable on the MRL Mobilehome Residency Law, HCD (Department of Housing), DRE, CA Contractor C47 Requirements, New Homes, Resales, Financing, ReFinancing, Trade Ins, Cash Outs, and we ALWAYS TELL THE TRUTH. This is an important purchase and WE are experts in our field. We are here to help our customers, we do not just work to get paid. We will inform you regarding city grants or rent assistance programs, Moving Company referrals, Construction & Air Conditioning Company Referrals or Handyman information. We Know Our Stuff. We are here to SERVE with Integrity and Hard Work. "The Harder We Work, The Luckier We Get". We Hope You See Our Signs ALL OVER TOWN. Hire the Busiest People to Get the JOB Done. And Done Right! We can offer you over 100 combined years of Full Time Experiences. Please call Josh, Kevin, Ruth or Michelle with any questions, to see this home or to see any other manufactured homes. Mon-Sun 10:00A.M.-8:00P.M Thank you! "We Can and Will Help You!" ***ALL HOMES CAN BE FINANCED***10% DOWN OAC Check out the virtual tour and floorplan, Please and Thank you
Fields in red are required.
Refine
Location:
Advertise
Click here to learn how you can list your home for sale or rent on our website.