Sevilla Sol 
Age-Restricted (55+) Community
10201 N. 99th Ave. #2
Peoria, AZ 85345
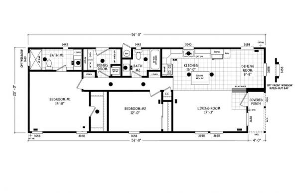
- 20 x 56
- 2 bedrooms
- 2 bathrooms
- Color: Miners Dust
- Seller ID #10651
- Serial #CAV130AZ25-26845AB
This charming 1120 square foot manufactured home in Peoria, AZ, offers a cozy and comfortable living space with 2 bedrooms and 2 bathrooms. Built in 2025 by Cavco, this home features a spacious living room, dining room, and a master bedroom with an ensuite bathroom. The exterior of the home includes a carport for added convenience.
Located in the vibrant community of Sevilla Sol, residents will soon be enjoying amenities such as a clubhouse, State of the art fitness center, Beautiful Clubhouse, kitchen, pool, Pickle Ball, Bocce Ball, Corn Hole, and green spaces. The community is perfect for those seeking a relaxed and active lifestyle, with regular social events and activities for residents to enjoy. With its convenient location near shopping, dining, and entertainment options, Sevilla Sol offers the perfect blend of comfort and convenience for its residents.
- Shingled Roof
- Carport
- Storage Shed
- Microwave
- Oven
- Refrigerator
- Dishwasher