City View 
907 Atlanta Dr
Spartanburg, SC 29306
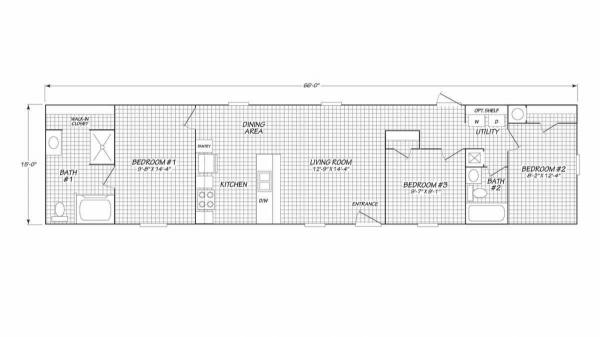
- 16 x 66
- 3 bedrooms
- 2 bathrooms
- Color: Green
- Lot Rent: $500 per month
- Serial #CAV170NC24-11770A
Step into modern comfort with this stunning 2025 Cavco Phoenix 16663A, offering 3 bedrooms, 2 bathrooms, and 1,056 sq. ft. of beautifully designed living space. This 16' x 66' home features an open floorplan that seamlessly connects the living, dining, and kitchen areas - perfect for both everyday living and entertaining.
The stylish kitchen comes fully equipped with a refrigerator, dishwasher, and electric range, making it move-in ready. The master suite is your private retreat, complete with a spa tub, walk-in closet, and a spacious layout designed for relaxation.
Enjoy the convenience of washer and dryer hookups and take in the fresh air on your large deck, perfect for outdoor dining or unwinding after a long day.
This brand-new Cavco home blends modern design with everyday functionality - everything you need for comfortable, effortless living.Lease Purchase Option available
Lender Financing Options to suit your needs
Cash offers welcome
- Shingled Roof
- Vinyl Siding
- Papered Walls
- Heat Pump Heat
- Deck
- Central Air
- Walk-in Closet
- Garden Tub
- Oven
- Refrigerator
- Dishwasher