Viking Estates 
Age-Restricted (55+) Community
15208 124th Ave Ct E.
Puyallup, WA 98374
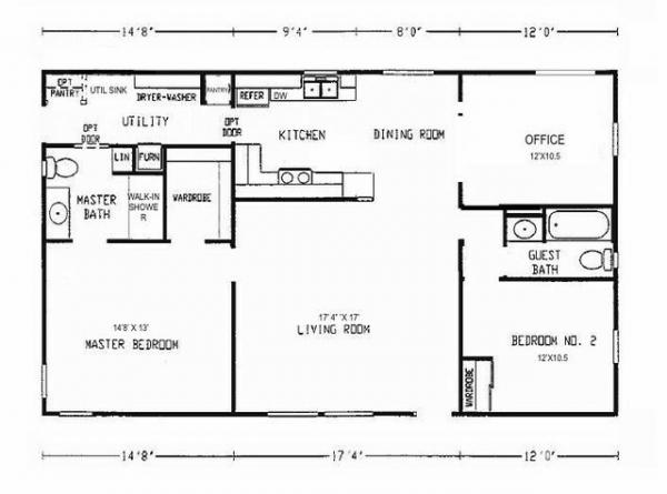
- 28 x 48
- 2 bedrooms
- 2 bathrooms
- Lot Rent: $1200 per month
This welcoming 2-bedroom, 2-bath home in a friendly 55+ community offers plenty of space and comfort-including a flexible bonus room perfect for an office, dining area, or craft space.
The home comes with modern appliances-washer, dryer, refrigerator, stove, and dishwasher-making it truly move-in ready. An AC/heat pump ensures year-round comfort and energy efficiency.
Step outside to a covered back deck overlooking beautiful landscaping, and sitting on the greenbelt, perfect for morning coffee or evening gatherings.
- Shingled Roof
- Hardboard Siding
- Drywall Ceilings
- Drywall Walls
- Heat Pump Heat
- Garage
- Storage Shed
- Gutters
- Patio
- Cathedral Ceiling
- Skylight
- Walk-in Closet
- Laundry Room
- Garden Tub
- Oven
- Refrigerator
- Dishwasher
- Clothes Washer
- Clothes Dryer