















View a virtual tour of this home: https://my.matterport.com/show/?m=7sFupx2yWV2
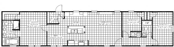
The Elite Series / The Jackson ELS16763D built by Jessup Housing is a stylish manufactured home offering 1,191 sq. ft. of well-designed living space. This 3-bedroom, 2-bathroom layout includes an inviting living area that flows into a modern kitchen with ample cabinetry and a dedicated dining space. The private primary suite offers a relaxing retreat, while the additional bedrooms provide flexibility. The Jackson ELS16763D combines efficiency and comfort in a welcoming design. Built by Jessup Housing is a stylish manufactured home offering 1,191 sq. ft. of well-designed living space. This 3-bedroom, 2-bathroom layout includes an inviting living area that flows into a modern kitchen with ample cabinetry and a dedicated dining space. The private primary suite offers a relaxing retreat, while the additional bedrooms provide flexibility. The Jackson ELS16763D combines efficiency and comfort in a welcoming design.Fields in red are required.
Refine
Location:
Advertise
Click here to learn how you can list your home for sale or rent on our website.