Oaks of Weymouth 
Age-Restricted (55+) Community
29 Redwood Lane
Mays Landing, NJ 08330
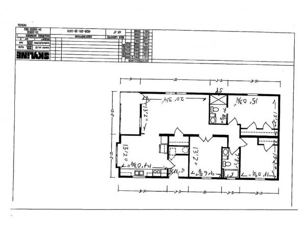
- 28 x 48
- 2 bedrooms
- 2 bathrooms
- Seller ID #72663
- Serial #ACX3110162IBA
Originally the community's model home, this property offers numerous upgrades and a comfortable, modern layout. This home features black stainless-steel appliances (2023), a new washer and dryer (2025), custom blinds, crown molding throughout, new Pergo flooring in the living room and hallway, and brand-new carpet in both bedrooms. Custom front awnings are also included. The floor plan offers 2 bedrooms, 2 full bathrooms, and a private den ideal for an office, hobby room, or guest space.