Buttonwood Bay 
Age-Restricted (55+) Community
632 Whip-Poor-Will Drive
Sebring, FL 33876
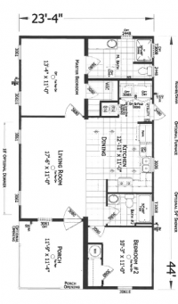
- 23 x 44
- 2 bedrooms
- 2 bathrooms
- Seller ID #156082
Your opportunity is here to own a brand new 2025, 2-bedroom, 2-bath double-wide home in beautiful Buttonwood Bay. This stunning home features an airy open floor plan, luxury vinyl floors throughout, and stainless steel appliances. The spacious primary suite includes a large walk-in closet and double vanities in the bathroom. Enjoy the Florida weather on the inviting outdoor porch, perfect for relaxing. The home also includes a roomy shed with double doors, providing space to store your golf cart. Outside, you ll find a brand-new irrigation system, new landscaping, and a freshly sodded yard. Located in the vibrant Buttonwood Bay community, you can enjoy multiple amenities including two heated pools, two clubhouses, pickleball courts, shuffleboard, a billiards hall, and many more activities. Call us today at or email to schedule a time to see this beautiful new home. It is coming soon, with just the finishing touches being completed.3rd party financing may be available on select homes. Inquire with our sales office.