2025 Clayton Homes Inc Adrenaline Mobile Home

$99,900
Rent for $1599/month

 home available for rent  View a map of this home's location Print This Page

Woodland Estates More info about this community is available
8847 Briarwood Lot 110
Kalamazoo, MI 49009

Daniel Richards

Woodland Estates MI

Phone: (269) 375-3083

www.yescommunities.com

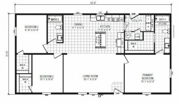
  • 28 x 52
  • 3 bedrooms
  • 2 bathrooms
  • Seller ID #147146
  • Serial #WK1115338INABAC
Ask me about Special Offers for Purchase Only!Discover modern, efficient living in this brand-new 2025 home within Oshtemo Township and the Mattawan School District. This 3-bedroom, 2-bath home features large bedrooms with oversized closets and a layout perfect for everyday living and entertaining.The stylish kitchen includes Samsung appliances, while high-efficiency LED lighting, a Carrier furnace with central air, and a Rheem smart water heater provide year-round comfort and energy savings. Move-in ready and a must-see!?? Call or text to schedule your tour Housing Opportunity

Fields in red are required.

  

Refine

Log In

Welcome!
You are not logged in.

Advertise

Click here to learn how you can list your home for sale or rent on our website.