2025 Mobile Home

$82,100

  View a map of this home's location Print This Page

Three Seasons Mobile Home Village More info about this community is available
6121 Collins Rd, #253
Jacksonville, FL 32244

Jana Velazco

Oak Wood Properties

Phone: (469) 708-1800

https

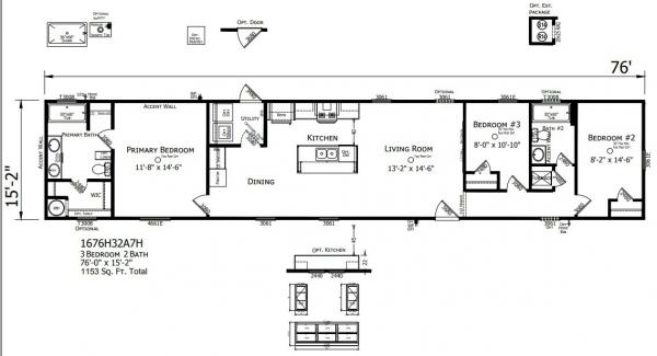
  • 16 x 76
  • 3 bedrooms
  • 2 bathrooms
  • Color: Tan
2025 Mobile Home2025 Mobile Home2025 Mobile Home2025 Mobile Home2025 Mobile Home2025 Mobile Home2025 Mobile Home2025 Mobile Home2025 Mobile Home2025 Mobile Home
2025 Mobile Home2025 Mobile Home2025 Mobile Home2025 Mobile Home2025 Mobile Home2025 Mobile Home2025 Mobile Home2025 Mobile Home2025 Mobile Home2025 Mobile Home
Step into modern comfort with this brand-new 2025 Champion Embrace manufactured home, thoughtfully designed for style, space, and everyday living. This tan and white 3-bedroom, 2-bath single-wide (16x76) features an open floor plan that creates a bright and welcoming atmosphere throughout the home. The spacious living, dining, and kitchen areas flow seamlessly together, making the layout ideal for both entertaining and relaxing. Modern appliances provide a sleek, move-in-ready feel, while large windows allow natural light to fill the space, enhancing the home's warm and neutral design. Each bedroom offers comfortable living space with flexible options for family, guests, or a home office. The two full bathrooms are generously sized and designed with comfort and functionality in mind. Located in Jacksonville, Florida, this home delivers a perfect blend of modern design and practical living-ideal for families, first-time buyers, or anyone looking to enjoy a brand-new home. Schedule your tour today and see everything this 2025 Champion Embrace has to offer.
  • Shingled Roof
  • Hardboard Siding
  • Drywall Ceilings
  • Papered Walls
  • Deck
  • Ceiling Fan
  • Microwave
  • Oven
  • Refrigerator
  • Dishwasher

Fields in red are required.

  

Refine

Log In

Welcome!
You are not logged in.

Advertise

Click here to learn how you can list your home for sale or rent on our website.