Sevilla Sol 
Age-Restricted (55+) Community
10201 N. 99th Ave. #2
Peoria, AZ 85345
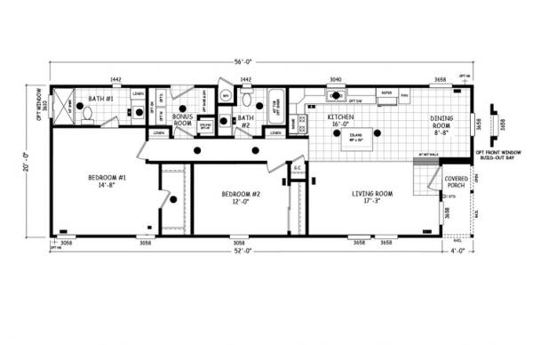
- 20 x 56
- 2 bedrooms
- 2 bathrooms
- Color: Miners Dust
- Seller ID #10651
- Serial #CAV130AZ25-26845AB
This charming 1,120 sq. ft. manufactured home in Peoria, AZ offers comfortable and stylish living with 2 bedrooms and 2 bathrooms. Built in 2025 by Cavco, the home features a spacious open living room and dining area, perfect for everyday living or entertaining. The primary bedroom includes an ensuite bathroom, providing a private and relaxing retreat. A convenient carport adds ease and functionality to the exterior.
Located within the vibrant Sevilla Sol community, residents will enjoy an active and social lifestyle with resort-style amenities coming soon, including a beautiful modern clubhouse that is opening soon, state-of-the-art fitness center, full kitchen, sparkling pool, Pickleball courts, Bocce Ball, Corn Hole, dog park, a famous walking trail to Thunderbird Rio Park. Regular social events and activities create a welcoming atmosphere, while the community's prime location offers easy access to shopping, dining, and entertainment. Sevilla Sol truly delivers the perfect blend of comfort, convenience, and active adult living.
- Shingled Roof
- Carport
- Storage Shed
- Microwave
- Oven
- Refrigerator
- Dishwasher