


View a virtual tour of this home: https://my.matterport.com/show?m=nRfCdgARgpj
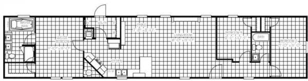
Step into timeless sophistication with this 1,191-square-foot Jessup home in the serene Estrella Ranch Community of Katy, TX. Featuring 3 bedrooms and 2 baths, this 2026 model embodies effortless elegance with its gourmet kitchen showcasing stainless steel appliances & a charming farm sink. The spacious living room flows seamlessly into a tranquil primary suite, complete with an en suite bath and luxurious spa tub. Outside, a welcoming deck and open porch invite you to enjoy the beauty of Texas evenings. With its graceful design and peaceful setting, Estrella Ranch offers both community warmth and modern refinement.Fields in red are required.
Refine
Location:
Advertise
Click here to learn how you can list your home for sale or rent on our website.