



















View a virtual tour of this home: https://momento360.com/e/uc/2ef45a9801114a1fb2284020294b5057?utm_campaign=embedutm_source=other&reset-heading=true&size=large&upload-key=01ca19300f4746e5a263d6b8fdecf1fb
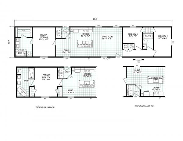
PRICE DROP! New, all-electric 2025 Clayton Mobile Home from the Pulse Collection. This charming spacious 16 x 76 mobile home with 3 bedroom and 2 full baths. This mobile home features an open living room that flows into the kitchen and dining area. This kitchen sparkles with stainless steel refrigerator, electric smooth top range, above the range microwave, dishwasher and a kitchen island for added convenience. Mobile has a utility room. The Primary bedroom has a private ensuite bathroom and a walk-in closet. The secondary bedrooms are nestled at the opposite end with the second bathroom in between them.Chateau MHC is a welcoming, pet-friendly community with spacious lots, well-lit streets, and a true sense of belonging. Just minutes from downtown Findlay, residents enjoy easy access to shops, dining, entertainment, and local attractions like Riverside Park, the Hancock Historical Museum, and the Marathon Center for the Performing Arts.
With nearby public transit and major highways, getting around is easy. Experience affordable home ownership with the perfect blend of suburban comfort and city convenience.
Call today to schedule a tour and see why residents love calling this Gemstone Community home. Don't forget to follow us on Facebook for the latest community news and events!
Fields in red are required.
Refine
Location:
Advertise
Click here to learn how you can list your home for sale or rent on our website.